Alto 631


Wohnen, Küche, Kind I, Kind II, Kind III, Schlafen, Ankleide, Bad, Gäste-WC, HAR, Diele, Flur

Details:
Satteldach 45°, 90 cm Drempel

Netto-Grundfläche:
ca. 168,6 m² (nach DIN277)
Wohnfläche:
ca. 152,2 m² (nach WoFlV)


Ausstattung
Ausstattungsvariante

zurück zur Hausübersicht     Preisinfo anfordern
Grundriss Erdgeschoss
Erdgeschoss Wohnfläche
Wohnen/Essen 46,49 qm
Küche 10,76 qm
Gäste-WC 5,53 qm
Diele 12,05 qm
HAR 8,48 qm
EG Gesamt 83,31 qm

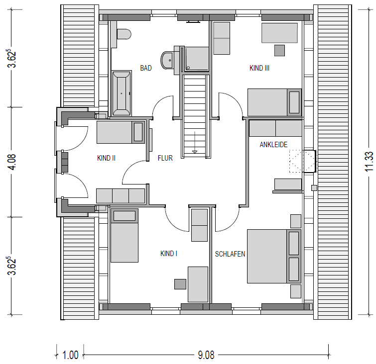
Grundriss Dachgeschoss
Dachgeschoss Wohnfläche
Schlafen 11,97 qm
Ankleide 4,48 qm
Kind I 12,29 qm
Kind II 9,50 qm
Kind III 11,06 qm
Bad 9,62 qm
Flur 9,95 qm
DG Gesamt 68,87 qm

zurück zur Hausübersicht     Preisinfo anfordern